
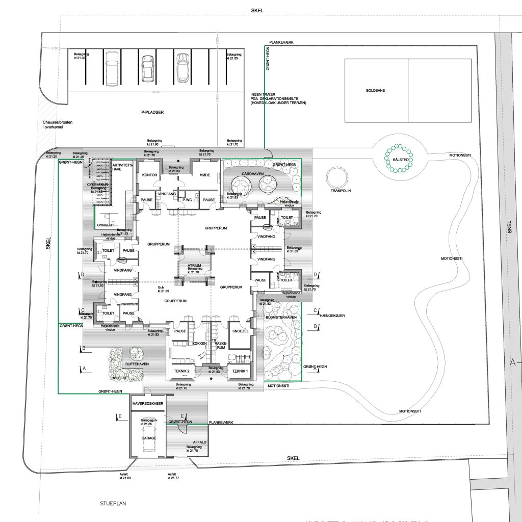
Arkitektfirmaet Rudolf Lolk A/S har udarbejdet skitseforslag samt stået for projektering af et institutionsbyggeri til psykisk belastede/autister.
Udformningen tilgodeser brugernes behov for forudsigelige (=firkantede) rum og mulighed for at kunne få et rum for sig selv uden forstyrrelser. Selv haverne er firkantede og er beplantet efter forhold der gør sig gældende som følge af de forskellige kompasretninger. På grunden er der bevaret træer der udgør et spor i landskabet, der strækker sig tilbage til da området var landbrugsland.